082VMM
Restructuration et restauration d'une villa en Toscane
Maîtrise d'ouvrage : Commande privée
Surface : 970 m2 , 5 hectares
Livré : Chantier en cours
Coût : 500 000€ HT
Située dans un village pittoresque à proximité de la ville fortifiée de Lucca, la Villa Morosili est un patrimoine toscan datant du XVIIe siècle. La résidence de style palladien est nichée sur un terrain en gradins de 5 hectares qui est structuré par ses murets de pierres sèches et arboré par ses champs d’Oliviers.
L’ensemble se compose de trois corps de bâtiments aux styles architecturaux et typologies distincts disposés en L avec la limonaia isolée et le volume de la Villa et du Custode contigus. L’accès sinueux à la propriété donne sur le portail d'entrée qui guide un abord latéral à la Villa au profit de la façade principale de la limonaia qui se révèle dès l'arrivée sur le site.
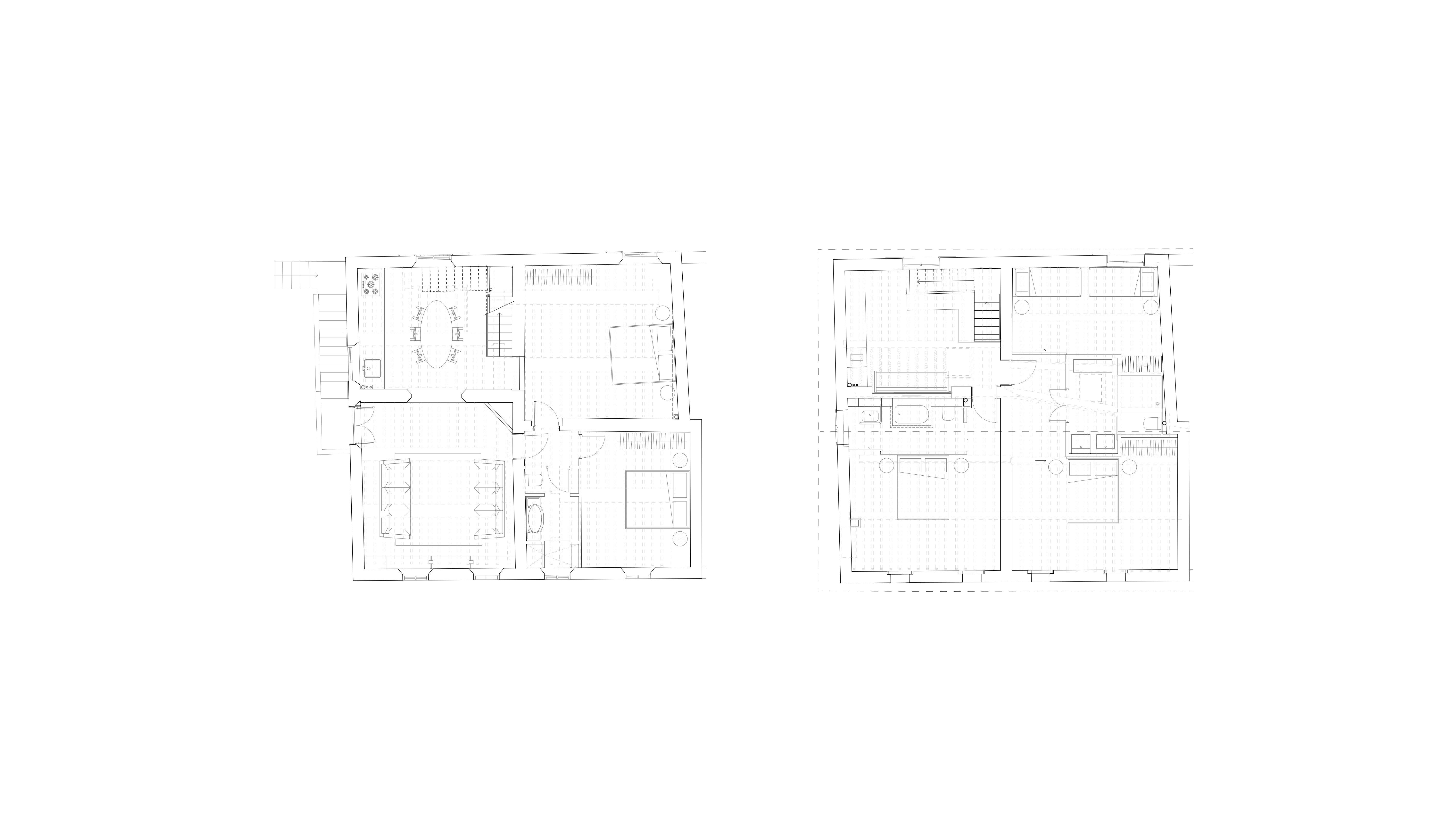
De style classique, la Villa représente la construction la plus importante du domaine avec une superficie occupée de 775m2 répartie entre les niveaux, piano terra, primo et soffitto. Cette portion de la propriété comporte deux entités, soit dans les portion Sud, les pièces destinées à la Villa et au Nord ceux du Custode originalement occupé par le gardien. Cette double fonction est perceptible dans la composition des façades qui permet de distinguer les espaces dédiées à de la Villa de par la teinte sable de ses façades en contraste la portion du Custode de teinte ocre. Richement sculptée, l’aile de la résidence principale se démarque par l’ordonnancement de ses grandes ouvertures horizontales aux corniches détaillées avec son balcon central qui souligne son entrée principale.
Le Custode se distingue pour sa part par son caractère dépouillé de facture mauresque et ses oculus en portion haute. Son organisation intérieure peu perceptible en façade se définit par la superposition des deux étages habités sur un étage dit “Cantina” originalement dédié au stockage.
Destinée à abriter les plantations précieuses au courant des saisons froides, la Limonaia “orangerie”, est une construction indépendante qui se caractérise par sa modénature villageoise et sa teinte blanche. L'édifice comporte un premier niveau souligné par les arcades de sa façade qui composent un espace entièrement ouvert sur les jardins. Cet étage est surplombé d'une grande salle au plan libre qui se caractérise par son plafond arqué avec sa structure métallique apparente. Au fil des années, la propriété a subi de multiples altérations avec une période d'abandon rendant sa préservation critique.
Le projet de restauration vise donc la mise en conformité de l'ensemble, afin de corriger les modifications antérieures et effectuer une restauration globale pour rétablir, préserver et révéler la beauté architecturale de l'ensemble.
En premier lieu, ce projet a exigé des investigations approfondies afin développer les connaissances préalables aux diverses autorisations patrimoniales auprès des intendances italiennes à la fois aux niveaux local, régional et national.
Échelonnée sur plus de 3 ans, l'intervention de l'agence se fonde sur la prémisse de la restitution d'une vérité historique par la recomposition d'un héritage cohérent, où la superposition de styles et époques se complètent. Afin d'arriver à cet amalgame, l'intervention préconise le réemploi d'éléments à même le site et à proximité afin de réintégrer et révéler des objets insoupçonnés. Le projet consiste ainsi en une intervention globale scindée en deux phases, soit dans un premier temps la mise en conformité de l'ensemble avec une attention à la restauration des fresques et enduits, la rénovation des installations techniques et la restitution paysagère.
Cette phase de mise à niveau et restauration est suivie d'une intervention de restructuration et transformations de Custode afin de valoriser ces espaces intérieurs inexploités. Ce volet du projet vient ainsi révéler tout le caractère de cette portion de la propriété grâce à la restitution des oculus condamnés et de l'ouverture latérale ainsi que le percement de la toiture afin d'y intégrer une ouverture zénithale supplémentaire. En complément à ce travail d'enveloppe, l'intervention redéfinit la lecture des espaces intérieurs grâce à une réorganisation spatiale complète au profit de la fluidité des circulations entre les fonctions. Le niveau soffitto est quant à lui investi afin d'y concevoir des pièces atypiques ou est mis en évidence la charpente en bois de la toiture.
Fort de sa volonté d'assurer l'intervention la plus juste pour ce lieu, l'agence BERENICE CURT ARCHITECTURE travail depuis le démarrage des premières études en étroite relation avec une pluralité d'intervenants et corps d'état locaux, tels: ingénieur, géomètre, artisans maçons et paysager. Une collaboration qui met de l'avant les savoirs faire locaux au profit de la valorisation du caractère singulier de l'environnement synonyme d'un art de vivre traditionnel à la ‟dolce vita”. La Villa Morosili, une fois restaurée et restructurée, pourra ainsi accueillir divers scénarios d'occupations qui assureront sa préservation tout en valorisant le caractère historique de ce lieu d'exception.

