065LDS
Création d'un tiers-lieu pour l'artisanat pyrénéen
Maîtrise d'ouvrage : INCO.ORG
Surface : 500 m2
Livré : octobre 2025
Coût : 300 000€ HT
La création d’un tiers lieux à Lourdes, est un projet que nous menons pour une association implantant des tiers lieux à l’aide de subventions publiques des régions et des communes.
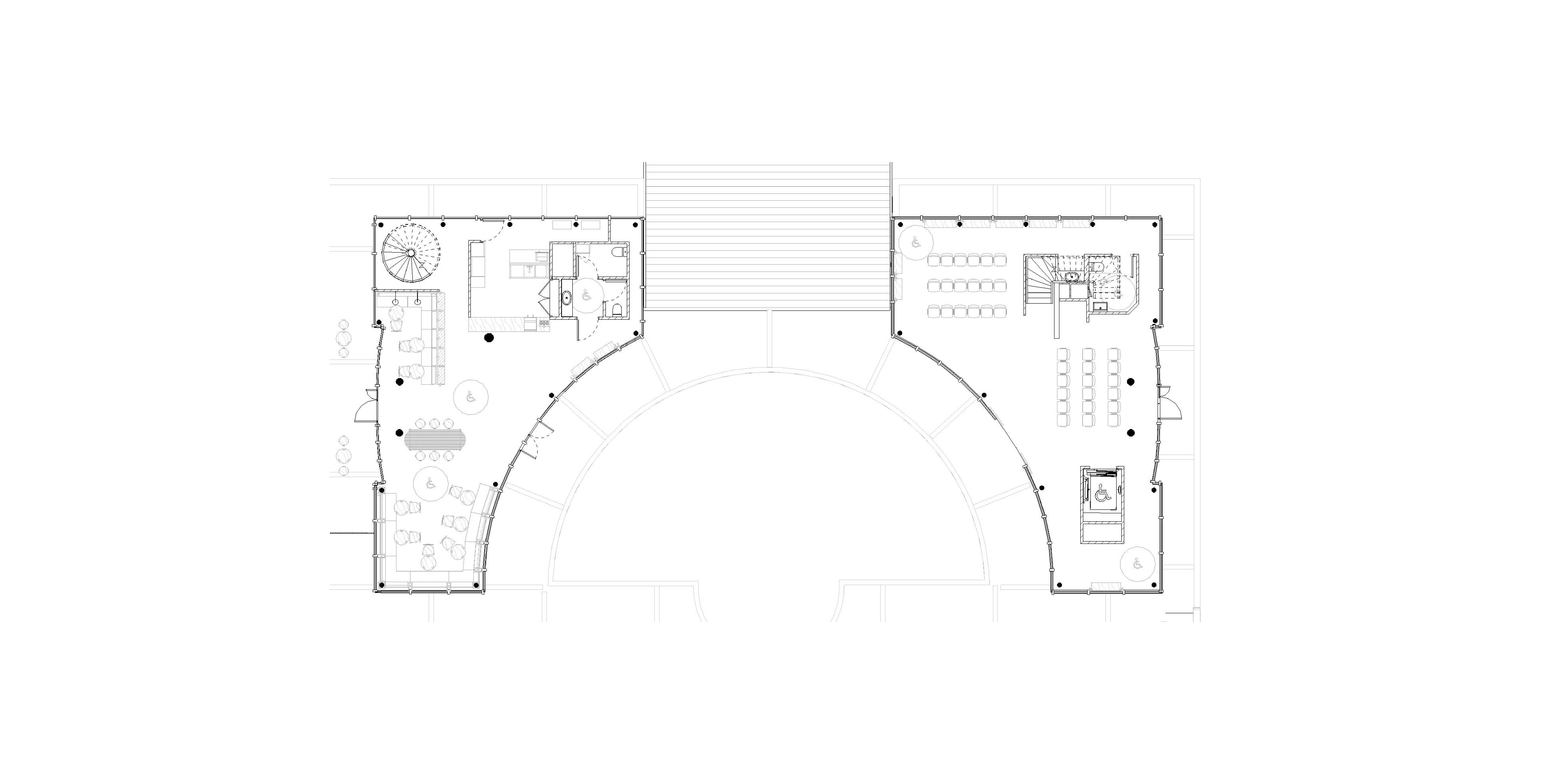
Le bâtiment, ancien hôtel de ville de Lourdes, est très atypique pour ce contexte, marqué par une enveloppe en mur rideau très prononcée. Trônant à la tête de la grande place Peyramale, au centre de Lourdes, le souhait de la ville était de réinvestir ce lieu peu fréquenté, sous exploité et mal entretenu.
Notre mission est d’en faire un lieu de rayonnement porté sur les rencontres, le lien et l’incubation de l'entrepreneuriat naissant visant à booster l'économie locale. Le programme du tiers lieu comprend un café-bar, une cuisine de préparation, une zone d’exposition et vente pour l’artisanat, des zones de conférence, de coworking et de réunions.
Le lieu est classifié ERP de type W. L'élaboration de dispositifs variés, composés de bois de récupération et de lainages des Pyrénées, tirent profit de la trame existante de l’enveloppe et offrent un renouveau de chaleur et de dynamisme aux intérieurs dénués de charme.
Le projet s' inscrit dans une démarche éco–responsable, privilégiant une démolition sélective et précise afin de maximiser la réutilisation des infrastructures existantes et de limiter la construction neuve aux seuls éléments réglementaires, tels que des sanitaires supplémentaires. Le mobilier a été soigneusement sélectionné pour son origine locale ou son engagement en faveur du recyclage, témoignant d’une volonté de raconter l’histoire de l’artisanat pyrénéen tout en fédérant les communautés locales autour de ce lieu emblématique.

