Femmes Architectes
  • Prix 2025
  • Depuis 2013
    • Prix 2024
    • Prix 2023
      • Lauréates 2023
    • Prix 2022
      • Lauréates 2022
    • Prix 2021
    • Prix 2020
      • Lauréates 2020
    • Prix 2019
      • Lauréates 2019
    • Prix 2018
      • Lauréates
    • Prix 2017
      • Résultats
      • Expositions
    • Prix 2016
      • Résultats
      • Exposition
      • Arc Vision Prize 2016
    • Prix 2015
      • Résultats
      • Exposition
      • Cérémonie de remise des prix
    • Prix 2014
      • Résultats
      • Jury
      • Cérémonie de remise des prix
    • Prix 2013
      • Résultats
      • Cérémonie de remise des prix
  • Evénements
    • Conférences
    • Expositions
  • Soutiens
    • Institutionels
    • Privés
    • Partenaires européens
  • Vidéos et études
    • Interviews
    • Jeunes diplômés
    • Etudes
  • Présentation
  • ARVHA
    • Qui sommes nous ?
    • On parle de nous
  • Architectes
    • Architectes
    • Type projet
  • English
  • Rechercher
  • Menu Menu
Liste des projets

Anaïs MAGNABAL

  • Site : https://magnabal.com
  • Adresse : 01 rue Antoine Courthieu 31500 TOULOUSE
Depuis plus de dix ans, Anaïs construit son parcours à travers des expériences multiples : cheffe de projet sur des programmes d’envergure (aéroport, clinique…), enseignante à l’ENSA Toulouse auprès d’étudiants en double cursus ingénieur-architecte, elle fonde sa propre agence en 2019, nourrie par une expérience singulière de plus de six ans : bâtir, aux côtés de son père artisan, deux maisons autopromues. De cette diversité est née une conviction : l’architecture gagne en justesse lorsqu’elle intègre l’acte de bâtir au cœur du processus. Anaïs défend une pratique où ingénieur, architecte et bâtisseur forment un tout indissociable. En réunissant ces compétences au sein d’une même agence, elle souhaite affirmer et défendre la profession, en montrant que conception et fabrication, théorie et pratique, ne doivent pas être dissociées pour répondre de manière pertinente aux enjeux contemporains. Et c’est d’ailleurs dans ce sens qu’elle mène une recherche doctorale encadrée par les laboratoires de recherche en architecture (LRA) et en sciences appliquées (INSA). Cette démarche de recherche-action, fondée sur des prototypes et mesures in situ, vise à développer les dispositifs de double peau comme outil d’adaptation climatique et urbaine en Occitanie. Son ambition : élaborer un référentiel de solutions architectoniques adaptées au contexte local, afin de promouvoir une architecture résiliente, économe et ancrée dans son territoire.

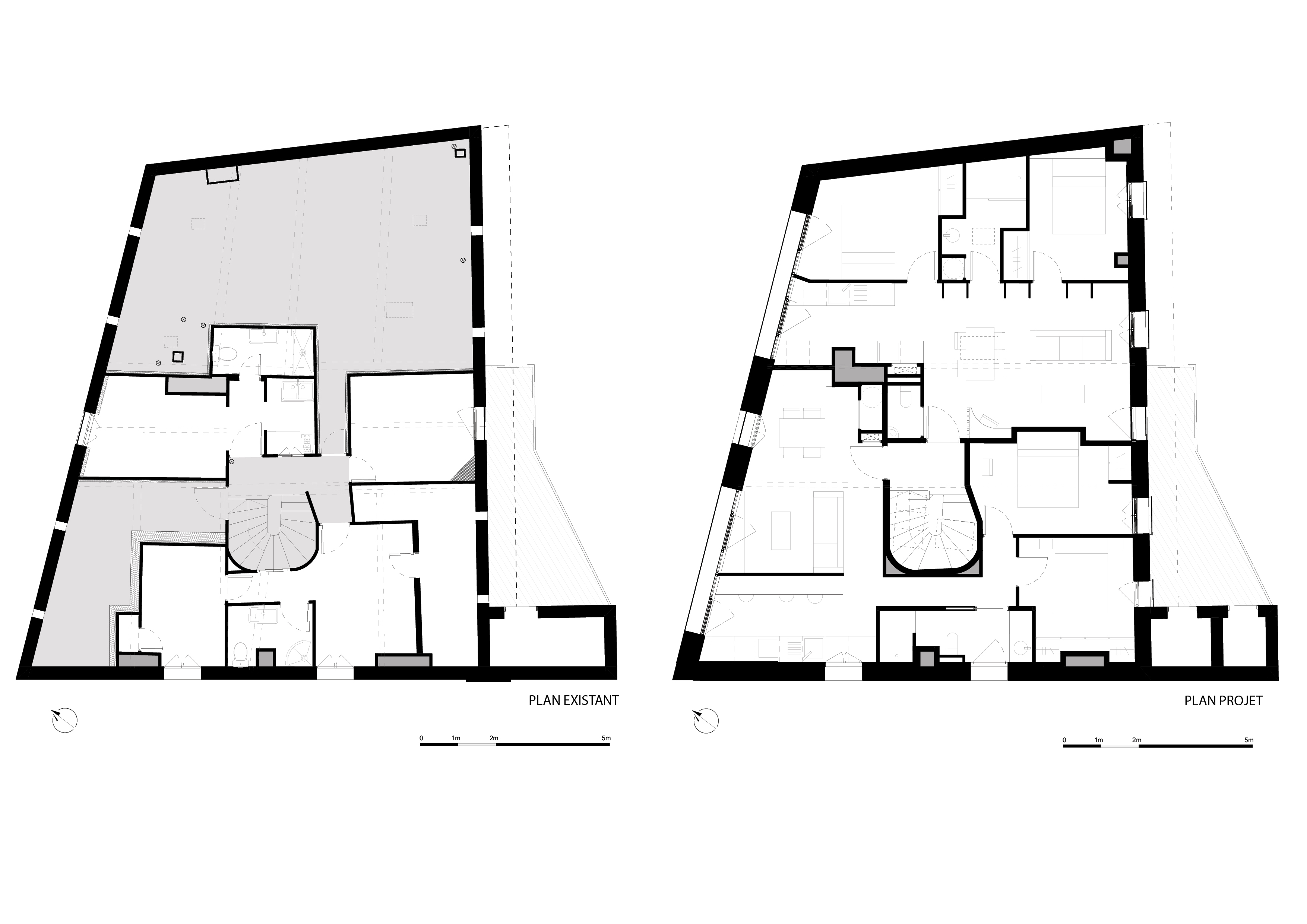
02_Habiter sous la charpente

Le bâtiment de la place du Busca à Toulouse, symbole du patrimoine local, présentait des problèmes structurels, notamment une charpente endommagée par un incendie. Les combles vétustes ont été valorisés et transformés pour créer deux élégants logements T3 traversants.
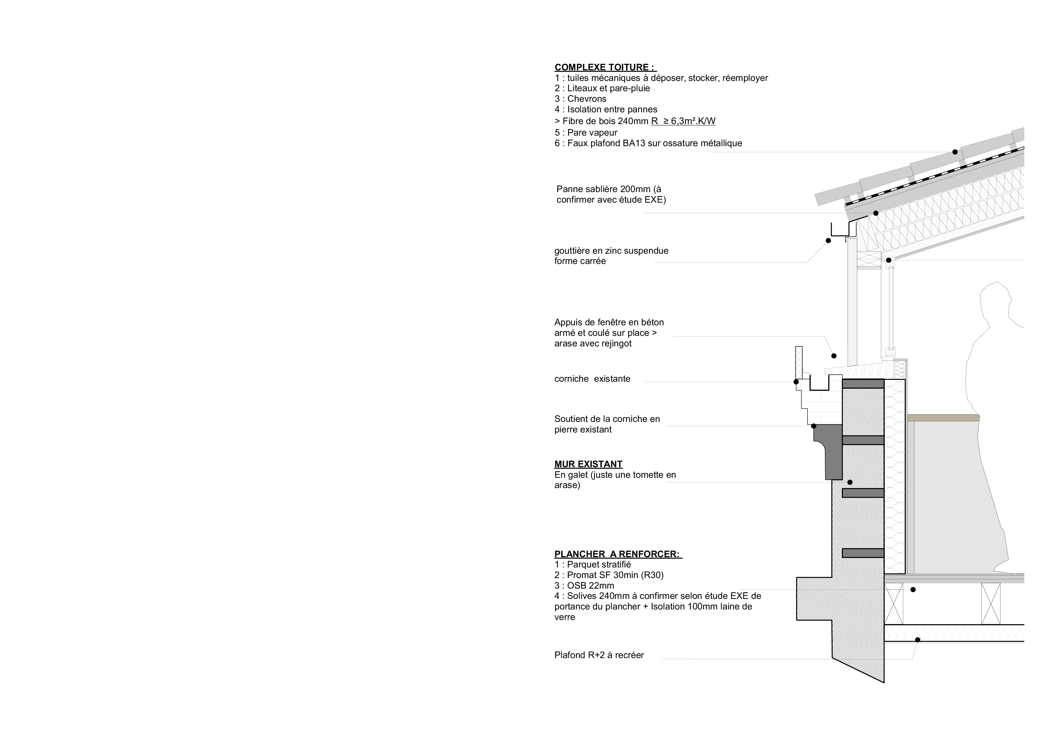
La surélévation, réalisée en ossature bois, a permis de minimiser la charge sur les murs maçonnés existants. Le remplacement de la charpente, liée au système porteur du dernier plancher, a nécessité une réflexion globale dès la conception sur les deux derniers niveaux du bâtiment et sur la cage d’escalier.

Le défi technique a été de taille, tant pour les éléments structurels participant à la composition des espaces que pour l’organisation du chantier. Le bâtiment dominant déjà la place, la surélévation d’un mètre du corps principal de la toiture est invisible depuis la place. Elle n’altère pas la géométrie des lucarnes et assure une intégration discrète et harmonieuse à l’environnement. L’architecture ordonnée et symétrique a été respectée. Construit dans les règles de l’art, avec une isolation en fibre de bois, le nouveau toit, avancé côté Sud pour protéger les vitrages et en retrait côté Nord pour maintenir la verticalité de la façade, est un élément distinct. Les menuiseries des balcons, recréées à l’identique, témoignent du savoir-faire artisanal.
Depuis l’intérieur des nouveaux logements, une vue imprenable sur les toits et clochers de Toulouse s’offre aux résidents, baignée d’une lumière douce au coucher du soleil, mettant en valeur la corniche en dentelle moulurée dont les parties endommagées ont été réparées. Derrière cette ornementation, le chéneau a été restauré par les artisans zingueurs Compagnons du Devoir et associé à un entablement soigneusement réalisé en joints debout pour assurer la liaison entre les murs existants et la surélévation.

Localisation : 8 place du Busca, 31400 Toulouse
Surface de plancher : 120 m2
Statut : Livré en 2024
Programme : Extension verticale pour la création de deux appartements, rénovation des parties communes
Budget : 412 000 €HT
Photographie : Carole Litot
Maître d’ouvrage : Privé
Maîtrise d’œuvre : Anaïs MAGNABAL

Illustration

© Copyright 2019 - ARVHA Femmes Architectes
  • Facebook
  • Twitter
  • Youtube
Faire défiler vers le haut