
Chen BEN CHITRIT LEJUSTE
- Site : www.kayma.fr
- Adresse : 1 rue Jean François HACHE 38000 38000 Grenoble
Depuis plus de dix ans, Chen BEN CHITRIT LEJUSTE développe en France une pratique architecturale engagée, à la croisée du sensible et du poétique. Diplômée de l’École d’architecture de Haïfa, elle a d’abord travaillé à Tel-Aviv pour de grandes agences telles que Yashar LTD et Maoz Price.
Pendant une longue période de sa vie, elle a suivi le littoral, où la culture méditerranéenne et la proximité de la mer nourrissent sa pratique : la conscience du besoin humain fondamental d’un horizon s’inscrit au cœur de sa manière de concevoir l’habitat.
Animée par une pensée critique et par la recherche le sens derrière l’acte de construire, elle poursuit des études en commissariat d'exposition. Son objectif : acquérir une compréhension profonde de la manière « d'habiter » l’espace par l’art.
En arrivant dans les Alpes françaises, un nouvel horizon s’ouvre : les vagues prennent la forme des montagnes, les repères deviennent les saisons, les cimes alpines. Le besoin humain profond d’un horizon se joint à celui d’un point d’appui. Les changements de saisons se reflètent dans la montagne, transformant le paysage et offrant ce repère saisonnier et évolutif, une notion qui s’inscrit également au cœur de son architecture dans un contexte où l’urgence d’agir face à la crise environnementale devient incontournable.
En 2021, elle s’associe au sein d’une agence grenobloise, où elle conduit des projets d’envergure et de programmes variés : concours, logements, équipements et programmes mixtes.
En 2024, elle fonde KAYMA, son agence pluridisciplinaire spécialiser dans l'habitat - favorable à la santé et durable. KAYMA, d’origine araméenne, signifie « déjà là » et évoque l’ancrage, la présence et l’attention portée à ce qui précède tout geste de construction.
Son parcours singulier, entre pays , entre l’architecture et le commissariat d’exposition, nourrit une approche hybride. Son expérience de commissaire d’exposition enrichit sa pratique architecturale, envisagée comme un acte de composition et de mémoire : collecter des traces du passé, accueillir des mémoires à venir, penser l’habitat comme une notion en constante évolution.
Inspirée par la pensée de Heidegger, elle conçoit l’architecture comme un art de l’habiter : un acte d’attention au monde, de soin porté à l’espace et à ceux qui y vivent.
La maison n’est pas seulement un volume construit : c’est un lieu où l’imaginaire se forme, où la mémoire s’inscrit, où la vie se tisse.
Son parcours personnel l’a conduite à une véritable vocation : créer et repenser l’habitat. Car le logement est notre premier univers. La psychanalyse de la maison la fascine et nourrit l’évolution de ses projets : logements collectifs, habitats individuels, co-living et expositions conceptuelles autour de l’HABITAT.
Dans ses projets, principalement centrés sur le logement, elle explore ces dimensions sensibles de l’habitat. Entre le vivre-ensemble et l’intime, entre la philosophie et rationalité constructive, son architecture vise un équilibre - celle qui permet aux habitants de faire corps avec leur environnement.
Elle défend une approche engagée et contextuelle, où l’économie de moyens se conjugue à une richesse d’émotions et de sens.
Porte un regard poétique sur son métier, refusant toute opposition entre rigueur et sensibilité. Elle conçoit l’architecture comme une forme d’attention active, où chaque projet est l’occasion de redéfinir les conditions de l’habiter - non pas seulement pour loger, mais pour exister pleinement, avec les autres, dans un monde en mouvement.
|
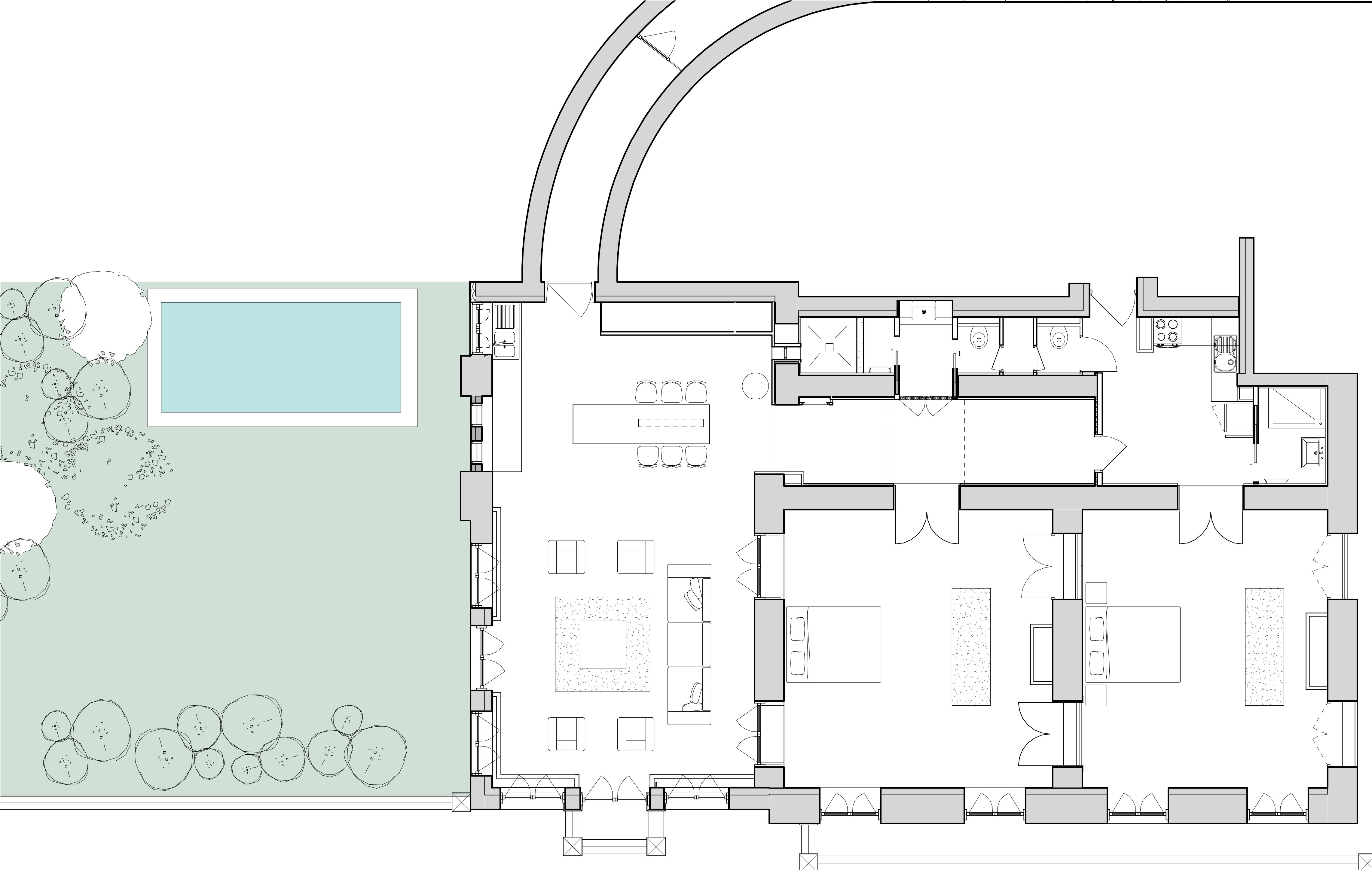
Maison Terray
Livraison : 2023 Rénovation d’une maison ancienne Cette rénovation d’une maison ancienne située dans un contexte rural français révèle une approche sensible et respectueuse du bâti existant. L’intervention met en lumière les qualités patrimoniales du lieu — sols en bois aux motifs géométriques complexes, fresques murales délicatement patinées — tout en intégrant des éléments contemporains avec subtilité. Les espaces ont été repensés afin d’apporter plus de fluidité dans la circulation et de favoriser la lumière naturelle. Les matériaux d’origine, tels que le parquet ancien et les enduits muraux, ont fait l’objet d’un travail minutieux de restauration. Le sol en bois, dont les motifs rythment la perception des pièces, devient un élément central de la composition. Des fresques murales, découvertes au fil du chantier, ont été préservées partiellement, dans un équilibre entre traces du passé et interventions contemporaines. Le choix a été fait de ne pas effacer les marques du temps, mais de les intégrer dans une narration architecturale plus large. L’ensemble du projet vise une cohérence douce entre héritage et usage, en s’appuyant sur la matérialité, la lumière, et la mémoire du lieu. Il s’agit moins de transformer que de révéler, en permettant à l’espace de retrouver sa force poétique et sa dimension habitée.
(Crédits images: Sandrine Rivière photographe)
|