Construction de 73 logements et commerces
● Localisation :
Saint-Denis, Île de France
● MOA :
Emerige résidentiel
● Surface :
5 700 m² de sdp
● Mission:
complète
● Budget: 09 M€HT
● Concours 2022, Lauréat
● Calendrier :
en chantier, livraison 2026
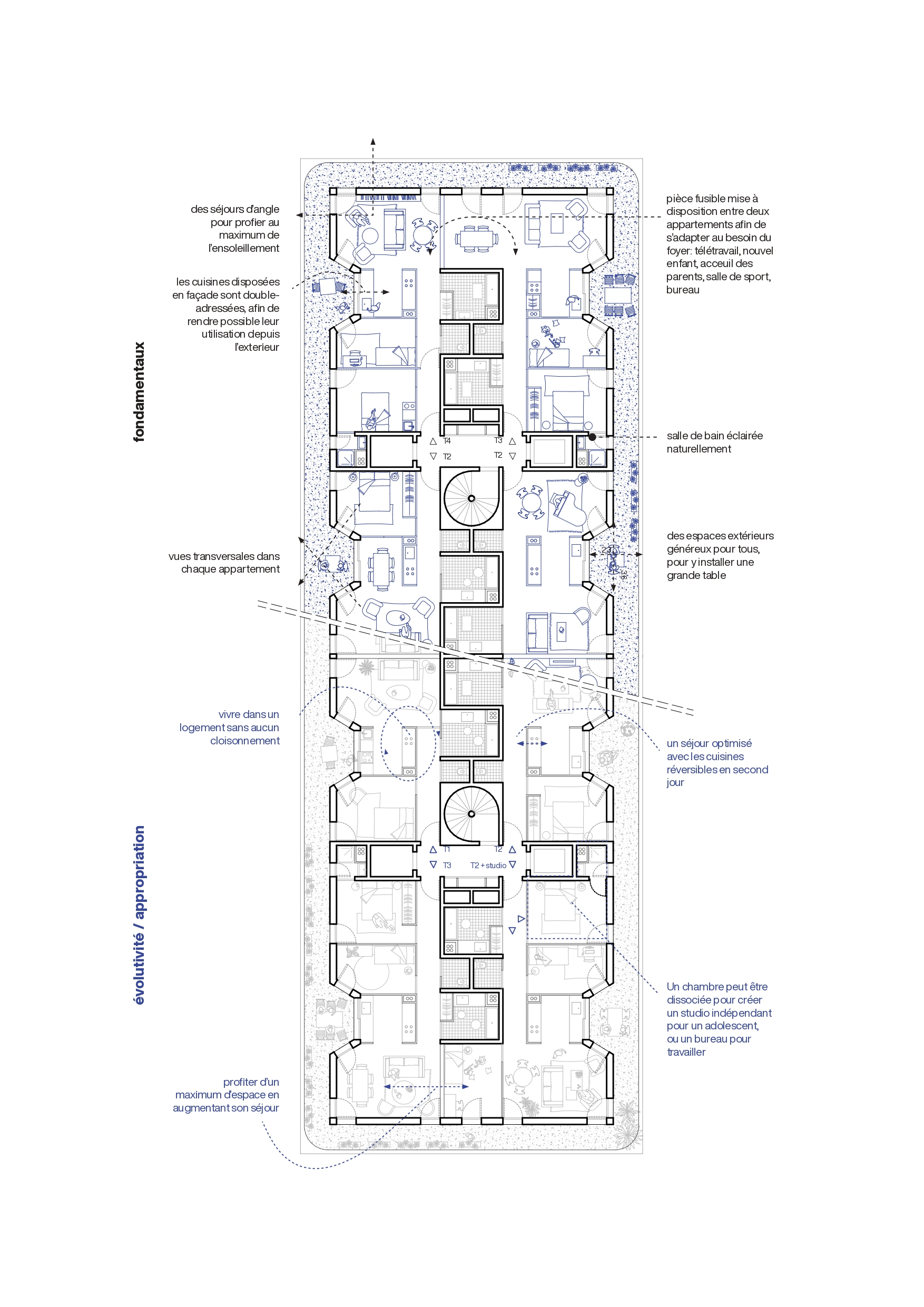
Les 73 logements s'organisent dans une morphologie en barre d'une épaisseur de 14 m, orientée est-ouest. Tous les logements y sont organisés autour d’une cuisine centrale en premier jour donnant sur un espace extérieur filant de grandes dimensions. Cet ensemble cuisine-loggia agit comme une rotule autour de laquelle s’organisent tous les espaces de l’appartement. Ces dispositions offrent aux usagers un rapport privilégié à l’extérieur permettant de cuisiner depuis son balcon. Les façades porteuses sont en brique monomur isolées, finie par un enduit à la chaux traditionnel et percées par des encadrements en bois. Le bâtiment est conçu en plan sur un système rationnel permettant de limiter l’usage du béton mais également de simplifier les passages de réseaux et les descentes de charges. Des systèmes de doubles portes ouvrant la cuisine sur les autres espaces amplifient le caractère central de celle-ci.

