
SOPHIE BALDASSARI
- Site : https://www.baldassari-architectes.fr/
- Adresse : 3 boulevard Notre Dame 13006 Marseille 13006 Marseille
Diplômée de l'ENSA Marseille en 2014 (HMONP en 2015), d'un Master I en communication Visuelle de l'ECV Provence en 2009, d'un Minor in Area and Cultural Studies de l’École Polytechnique Fédérale de Lausanne en 2013 et d'un Master II en Urbanisme et Développement Durable à l'Institut d'Urbanisme et Aménagement Régional en 2018 (Aix-Marseille Université).
Après un court passage aux Ateliers Jean Nouvel, elle prend en 2017 la direction de la société familiale BALDASSARI-SIBOURG ARCHITECTES, agence qu’elle a reprise et développée. Elle y associe son frère Thomas, économiste de la construction, en 2020, puis Charlotte Beraha, architecte DPLG, en 2023. BSA, fondée depuis plus de trente ans, est spécialisée dans la réhabilitation en site occupé.
C’est précisément cette pratique qu’elle découvre dans l’agence qui façonne sa vision d’une architecture de demain, où il s’agit de « construire la ville sur la ville ». Cette approche impose à l’architecte de composer avec des contextes déjà existants et d’y répondre avec justesse et inventivité.
Ainsi, à travers le déjà-là et celles et ceux qui habitent, traversent ou désignent la ville, l’architecte est amenée à observer, questionner et écouter. L’enjeu devient alors de favoriser une nouvelle appropriation, plus vertueuse, en révélant les qualités spatiales, en racontant l’histoire des lieux et en cultivant une fierté d’y habiter. La réhabilitation inscrit également l’architecture dans un processus à long terme, où chaque projet ouvre la voie à de nouvelles possibilités et à d’autres transformations futures.
Sur ce socle de convictions, Sophie Baldassari conçoit sa profession comme un engagement continu au service de la ville intense, du vivre-ensemble et du respect de ses habitants. Marseille, ville de contrastes, marquée par de profondes inégalités sociales mais aussi riche de diversités stimulantes, devient pour elle un terrain d’expérimentation privilégié et un catalyseur d’un certain idéal républicain.
Progressivement, elle construit avec son équipe une vision d’une architecture de qualité pour toutes et tous, portée par la volonté de réparer les inégalités spatiales et sociales à travers les projets, notamment dans les quartiers populaires.
Dans cette perspective, elle fonde en 2018 la marque « Réenchantier », démarche qui favorise l’appropriation des projets par les usagers grâce à des ateliers participatifs. Ces derniers intègrent au projet des réalisations conçues et construites avec eux (fresques, mobiliers, plantations, etc.), renforçant ainsi le lien entre habitants et lieux de vie.
Parallèlement, Sophie s’investit dans la vie de la cité : trésorière adjointe de l’Ordre des Architectes, membre du conseil d’administration d’AMO, accompagnatrice BDM et administratrice de la Fondation Agir Contre l’Exclusion. Elle engage également son entreprise dans une démarche de responsabilité sociétale en signant en 2023 le PAQTE (Pacte avec les Quartiers pour toutes les Entreprises) et en développant la stratégie RSE de Baldassari-Sibourg Architectes dans ce sens.
|
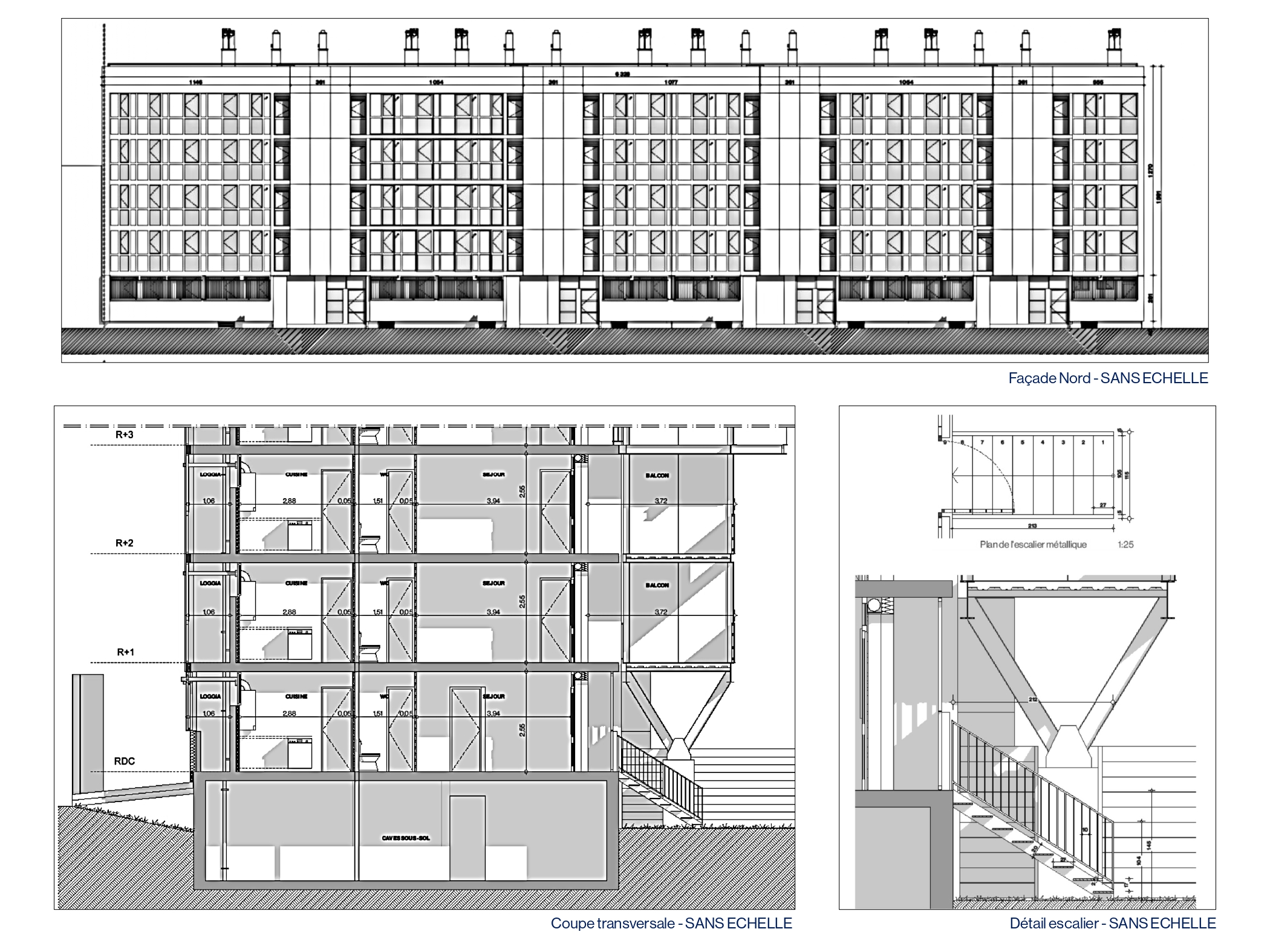
RÉSIDENCE LA BUSSERINE (réhabilitation en site occupé)
Pour le compte d’Erilia, cette opération ambitieuse s’inscrit dans une démarche de rénovation énergétique et sociale exemplaire, repensant à la fois l’architecture et les usages pour offrir un cadre de vie renouvelé dans le quartier de La Busserine, en cohérence avec le schéma directeur de l’ANRU.
Déconstruction de 50 mètres de barre centrale pour connecter les logements aux équipements principaux du quartier équipements principaux (école notamment) à la future Plaine des Loisirs ( MOA : Ville de Marseille, architecte : NAOM ) suivant le schéma de ANRU - Agence Nationale pour la Rénovation Urbaine. Amélioration du cadre de vie
Les interventions visent à revaloriser les espaces intérieurs et extérieurs :
Extension des espaces privatifs : Ce projet, nourri par les études menées pendant le confinement, place les habitants au cœur de la réflexion, favorisant de nouveaux usages et répondant aux attentes de confort et de qualité de vie. Lors du diagnostic, il a été révélé que la taille des séjours étaient parfaitement identiques pour toutes les typologies, du T1 au T6. La taille des séjours de 15m2 étant parfaitement insuffisant pour une famille d'autant plus, lorsque la pandémie oblige à rester confiné.
Lors du diagnostic, l'équipé d'architecte a proposé à la MOA, la création de 10 m² supplémentaires au sud pour chaque logement, grâce à l’ajout de balcons en prolongation des séjours et chambres + fermeture des loggias au nord, offrant 2 m² supplémentaires et une meilleure protection contre le mistral en plus d'une arrivée d'eau permettant l'installation de la machine à laver (et libérant ainsi la cuisine d'un module supplémentaires).
Requalification des façades et des entrées : Les façades Nord et Sud étaient parfaitement identiques. Le projet présenté propose une nouvelle esthétique différentiée pour valoriser l’image de la résidence et renforcer son attractivité. Les halls agrandis et lumineux ont fait l'objet d'un vote auprès des habitants.
Adaptation des logements : Réorganisation des typologies pour mieux répondre aux besoins du quartier, incluant une mise aux normes PMR. Certains logements ont été entièrement reconfigurés afin d'offrir des typologies adaptés aux besoins du quartier.
Espaces extérieurs et intégration urbaine: Aménagement des pieds de façades en jardins privatifs pour renforcer l’appropriation des lieux par les habitants et permettre une meilleur perméabilité de la parcelle.
Harmonie avec les espaces publics : Intégration des parkings et création de continuités paysagères en lien avec les futurs aménagements de la Plaine des Loisirs.
|