
SOPHIE BALDASSARI
- Site : https://www.baldassari-architectes.fr/
- Adresse : 3 boulevard Notre Dame 13006 Marseille 13006 Marseille
Diplômée de l'ENSA Marseille en 2014 (HMONP en 2015), d'un Master I en communication Visuelle de l'ECV Provence en 2009, d'un Minor in Area and Cultural Studies de l’École Polytechnique Fédérale de Lausanne en 2013 et d'un Master II en Urbanisme et Développement Durable à l'Institut d'Urbanisme et Aménagement Régional en 2018 (Aix-Marseille Université).
Après un court passage aux Ateliers Jean Nouvel, elle prend en 2017 la direction de la société familiale BALDASSARI-SIBOURG ARCHITECTES, agence qu’elle a reprise et développée. Elle y associe son frère Thomas, économiste de la construction, en 2020, puis Charlotte Beraha, architecte DPLG, en 2023. BSA, fondée depuis plus de trente ans, est spécialisée dans la réhabilitation en site occupé.
C’est précisément cette pratique qu’elle découvre dans l’agence qui façonne sa vision d’une architecture de demain, où il s’agit de « construire la ville sur la ville ». Cette approche impose à l’architecte de composer avec des contextes déjà existants et d’y répondre avec justesse et inventivité.
Ainsi, à travers le déjà-là et celles et ceux qui habitent, traversent ou désignent la ville, l’architecte est amenée à observer, questionner et écouter. L’enjeu devient alors de favoriser une nouvelle appropriation, plus vertueuse, en révélant les qualités spatiales, en racontant l’histoire des lieux et en cultivant une fierté d’y habiter. La réhabilitation inscrit également l’architecture dans un processus à long terme, où chaque projet ouvre la voie à de nouvelles possibilités et à d’autres transformations futures.
Sur ce socle de convictions, Sophie Baldassari conçoit sa profession comme un engagement continu au service de la ville intense, du vivre-ensemble et du respect de ses habitants. Marseille, ville de contrastes, marquée par de profondes inégalités sociales mais aussi riche de diversités stimulantes, devient pour elle un terrain d’expérimentation privilégié et un catalyseur d’un certain idéal républicain.
Progressivement, elle construit avec son équipe une vision d’une architecture de qualité pour toutes et tous, portée par la volonté de réparer les inégalités spatiales et sociales à travers les projets, notamment dans les quartiers populaires.
Dans cette perspective, elle fonde en 2018 la marque « Réenchantier », démarche qui favorise l’appropriation des projets par les usagers grâce à des ateliers participatifs. Ces derniers intègrent au projet des réalisations conçues et construites avec eux (fresques, mobiliers, plantations, etc.), renforçant ainsi le lien entre habitants et lieux de vie.
Parallèlement, Sophie s’investit dans la vie de la cité : trésorière adjointe de l’Ordre des Architectes, membre du conseil d’administration d’AMO, accompagnatrice BDM et administratrice de la Fondation Agir Contre l’Exclusion. Elle engage également son entreprise dans une démarche de responsabilité sociétale en signant en 2023 le PAQTE (Pacte avec les Quartiers pour toutes les Entreprises) et en développant la stratégie RSE de Baldassari-Sibourg Architectes dans ce sens.
|
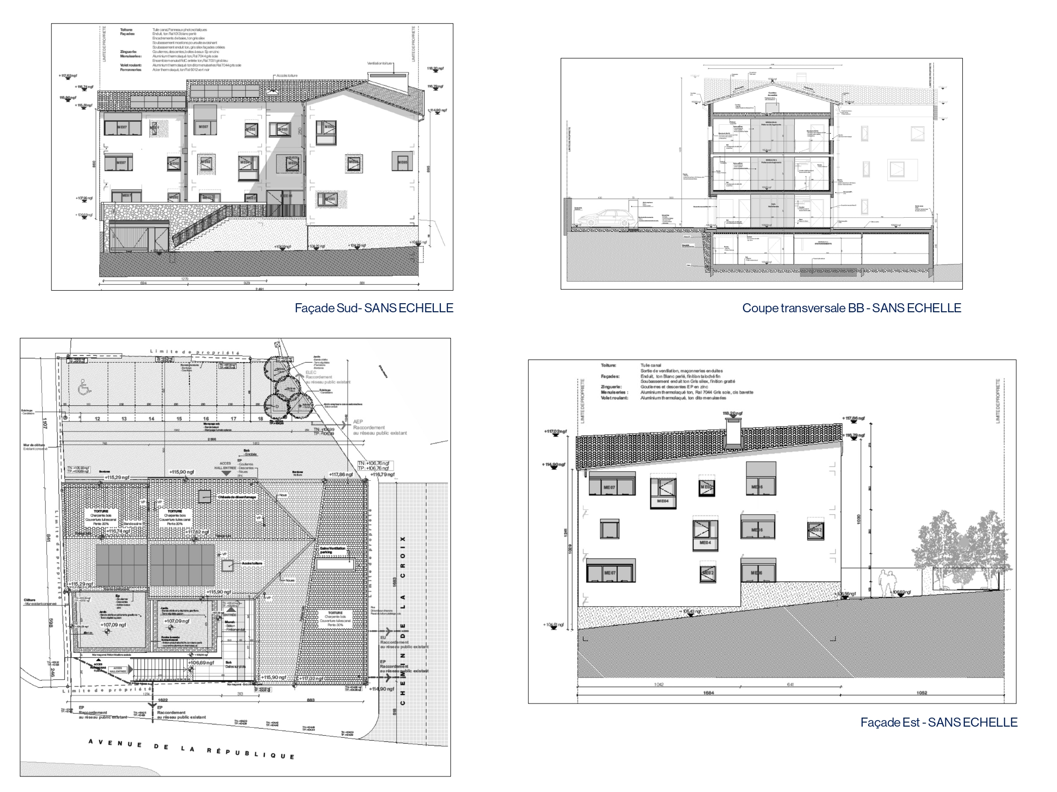
MAISON ANDRÉ & PLACETTE ( construction neuve )
Construction de 10 logements locatifs et aménagement d’une placette
Le projet s’inscrit dans le tissu villageois du centre ancien de Coudoux, sur un terrain présentant une forte déclivité. Il prévoit démolition d'une maison individuelle pour la construction d’un petit immeuble collectif en R+2 de 10 logements locatifs sociaux.
Grâce à la déclivité, le projet offre la possibilité de créer un socle bâti abriant un parking souterrain et rappelant le lien avec le mur de clôture avoisinant sur les traces du mur de clôture de la villa démolie.
Ce socle permet une mise à l'écart de la façade Sud, s'ouvrant sur le grand paysage. Le projet en forme de L est en retrait de la parcelle d'origine offre un nouvel espace qui sera rétrocédé à la mairie. La création d'une placette solutionne un carrefour accidentogène et offre de nouvelles places de stationnements aux voisins.
Les façades, d'une écriture volontairement vernaculaire, conçues en continuité du contexte bâti existant permettent une intégration harmonieuse au paysage urbain et cherche à renforcer l’identité du site.
Les logements sont traversants ou bi orientés et bénéficient tous d'épaisses loggia pour vivre dehors, façe au paysage.
L’ensemble de l’enveloppe est traité par une isolation thermique par l’extérieur en liège, matériau biosourcé.
Le projet a atteint le niveau Argent du référentiel Bâtiment Durable Méditerranéen Il a été lauréat du palmarès régional de l'habitat 2024
https://www.paca.developpement-durable.gouv.fr/la-ceremonie-de-remise-des-prix-du-palmares-a16167.html#H_Les-dix-operations-laureates
|