
SOPHIE BALDASSARI
- Site : https://www.baldassari-architectes.fr/
- Adresse : 3 boulevard Notre Dame 13006 Marseille 13006 Marseille
Diplômée de l'ENSA Marseille en 2014 (HMONP en 2015), d'un Master I en communication Visuelle de l'ECV Provence en 2009, d'un Minor in Area and Cultural Studies de l’École Polytechnique Fédérale de Lausanne en 2013 et d'un Master II en Urbanisme et Développement Durable à l'Institut d'Urbanisme et Aménagement Régional en 2018 (Aix-Marseille Université).
Après un court passage aux Ateliers Jean Nouvel, elle prend en 2017 la direction de la société familiale BALDASSARI-SIBOURG ARCHITECTES, agence qu’elle a reprise et développée. Elle y associe son frère Thomas, économiste de la construction, en 2020, puis Charlotte Beraha, architecte DPLG, en 2023. BSA, fondée depuis plus de trente ans, est spécialisée dans la réhabilitation en site occupé.
C’est précisément cette pratique qu’elle découvre dans l’agence qui façonne sa vision d’une architecture de demain, où il s’agit de « construire la ville sur la ville ». Cette approche impose à l’architecte de composer avec des contextes déjà existants et d’y répondre avec justesse et inventivité.
Ainsi, à travers le déjà-là et celles et ceux qui habitent, traversent ou désignent la ville, l’architecte est amenée à observer, questionner et écouter. L’enjeu devient alors de favoriser une nouvelle appropriation, plus vertueuse, en révélant les qualités spatiales, en racontant l’histoire des lieux et en cultivant une fierté d’y habiter. La réhabilitation inscrit également l’architecture dans un processus à long terme, où chaque projet ouvre la voie à de nouvelles possibilités et à d’autres transformations futures.
Sur ce socle de convictions, Sophie Baldassari conçoit sa profession comme un engagement continu au service de la ville intense, du vivre-ensemble et du respect de ses habitants. Marseille, ville de contrastes, marquée par de profondes inégalités sociales mais aussi riche de diversités stimulantes, devient pour elle un terrain d’expérimentation privilégié et un catalyseur d’un certain idéal républicain.
Progressivement, elle construit avec son équipe une vision d’une architecture de qualité pour toutes et tous, portée par la volonté de réparer les inégalités spatiales et sociales à travers les projets, notamment dans les quartiers populaires.
Dans cette perspective, elle fonde en 2018 la marque « Réenchantier », démarche qui favorise l’appropriation des projets par les usagers grâce à des ateliers participatifs. Ces derniers intègrent au projet des réalisations conçues et construites avec eux (fresques, mobiliers, plantations, etc.), renforçant ainsi le lien entre habitants et lieux de vie.
Parallèlement, Sophie s’investit dans la vie de la cité : trésorière adjointe de l’Ordre des Architectes, membre du conseil d’administration d’AMO, accompagnatrice BDM et administratrice de la Fondation Agir Contre l’Exclusion. Elle engage également son entreprise dans une démarche de responsabilité sociétale en signant en 2023 le PAQTE (Pacte avec les Quartiers pour toutes les Entreprises) et en développant la stratégie RSE de Baldassari-Sibourg Architectes dans ce sens.
|
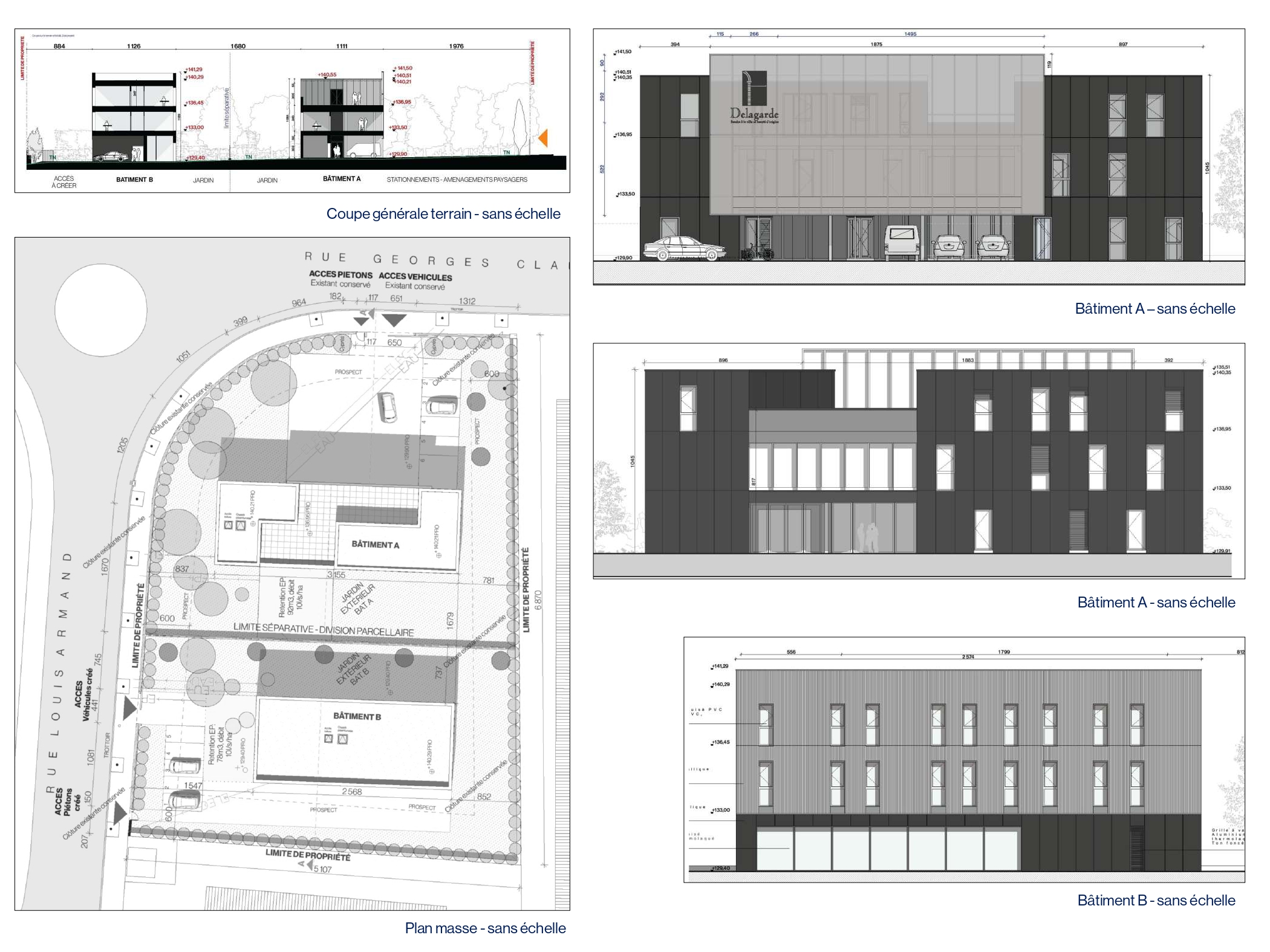
Siège social de l'entreprise DELAGARDE ( construction neuve )
Conception, réalisation et aménagement intérieur du siège social d’une entreprise aixoise
Le projet concerne la construction neuve de deux bâtiments accueillant des bureaux ainsi qu’un logement de fonction de 80 m² situé en toiture. Le premier édifice, le bâtiment B, a été livré en amont dans le cadre d’un programme tertiaire locatif destiné à financer partiellement le bâtiment A, siège social de l’entreprise spécialisée dans la façade — et cœur du projet que nous souhaitons mettre en valeur.
L’aménagement intérieur du siège intègre une vingtaine de postes de travail, une salle de réunion, des espaces modulables, une tisanerie, un logement de fonction et des locaux communs. Leur conception a été élaborée en concertation directe avec les utilisateurs, grâce à des ateliers participatifs animés par l’architecte.
Cette démarche collaborative a permis de créer un siège social fidèle aux attentes des collaborateurs : un cadre architectural protecteur, mettant en avant leur savoir-faire (le bardage) tout en intégrant des espaces extérieurs ou intérieur pensés comme supports de confiance, de bien-être et de liberté.
Le plan, structuré autour de deux équerres noires, incarne ce double registre. Celles-ci renferment les espaces essentiels — bureaux individuels, salles de réunion, salle des métreurs —, véritables lieux de concentration et de protection. Entre elles, se déploient des espaces lumineux, ouverts et évolutifs, favorisant créativité, souplesse et modes de travail informels.
Cette organisation spatiale reflète la vision des salariés : une entreprise qui conjugue rigueur et flexibilité. Le principe en équerre se décline à tous les niveaux, accueillant des programmes variés, du garage en rez-de-chaussée à l’appartement en attique.
En façade, le projet exprime avec force le savoir-faire de l’entreprise. Le bardage joue d’un subtil jeu d’écrans entre intérieur et extérieur, entre planéité et profondeur. Selon les heures et les saisons, la façade devient surface mouvante, presque cinématographique. À l’intérieur, ce voile transforme la perception, créant un univers propice au rêve et à la liberté.
Le maître d’ouvrage, Philippe Sandoz, a offert à son architecte une véritable carte blanche pour concevoir ce siège à l’image de son entreprise.
|