
Fabienne Bulle
- Site : www.bullepoirierjustman.archi
- Adresse : 113, avenue de la République 92120 Montrouge
Fabienne Bulle, l’architecte de l'émotion
Depuis plus de quarante ans, Fabienne Bulle trace une voie singulière dans le paysage architectural français. Formée à l’École Spéciale d’Architecture de Paris, dont elle deviendra ensuite l’une des enseignantes marquantes, elle a bâti une œuvre guidée par une conviction forte : l’architecture est d’abord une affaire d’émotion et de relations humaines.
À la tête aujourd’hui de l’agence Bulle, Poirier & Justman Architectes, elle poursuit avec ses associés une quête où l’esthétique, l’usage et la responsabilité sociale se rejoignent. Chaque projet est envisagé comme une réponse sensible au lieu, à son histoire et à ses usagers. Fabienne Bulle revendique une approche intemporelle : lumière, proportions et matériaux sont pensés comme des vecteurs d’harmonie et de bien-être. Le bois, matériau vivant et porteur de sens, traverse son œuvre, qu’il s’agisse d’équipements publics, de logements ou de réhabilitations exemplaires.
Sa démarche s’appuie sur une vision profondément humaniste et durable. Pour elle, construire ne se limite pas à ériger des murs : c’est créer des lieux de vie, d’apprentissage, de mémoire, où l’on se sent en résonance avec son environnement. Cette philosophie, elle l’a également transmise à des générations d’étudiants à travers « La Fabrique Collective », le laboratoire de l’École Spéciale d’Architecture où elle a emmené ses élèves bâtir sur plusieurs continents, explorant la force du collectif et la richesse des savoir-faire.
Fabienne Bulle est une architecte reconnue, mais aussi une pédagogue, une passeuse et une visionnaire. Son parcours est jalonné de distinctions qui témoignent de l’ampleur et de la cohérence de son engagement :
Prix AMO (2012)
Nominée Prix des Femmes Architectes (2013)
Nominée Prix Européen Mies van der Rohe (2013)
Trophée Bois Île-de-France – Mention spéciale (2015)
Finaliste ADC Awards (2018)
Lauréate Prix des Femmes Architectes – Œuvre originale (2019)
Palmarès Régional de la Construction Bois Centre-Val-de-Loire – Catégorie « Réhabiliter un équipement » (2020)
Care d’Or « architecture, urbanisme et société » (2022)
Label « Architecture contemporaine remarquable » pour le Lycée Saint-Jean-Baptiste-de-la-Salle à Bourges (2023)
Palmarès de la Construction Durable en Val-d’Oise – Projet « Maison Rigal » (2023)
Prix des Étudiants – Prix Régional de la Construction Bois pour la Caserne des Sapeurs-Pompiers de Paris (2024)
Personne d’Or – Geste et Care d’Or, Grand Prix (2024)
Toutes ces reconnaissances disent une même chose : Fabienne Bulle construit avec exigence, mais aussi avec cœur. Elle conçoit des espaces qui allient rigueur constructive, poésie de l’espace et responsabilité environnementale. Une architecture qui relie, qui transmet, et qui, toujours, touche à l’essentiel : l’émotion d’habiter.
Repères biographiques :
Fabienne Bulle, née le 18 juin 1953 à Bourges, est diplômée de l’École Spéciale d’Architecture de Paris en 1977 et membre titulaire de l’Académie de l’Architecture depuis 2012. Elle a fondé successivement plusieurs agences – Bulle Brinon Architectes (1982), Fabienne Bulle Architecte (1995), Fabienne Bulle Architecte et Associés (2012) – et est depuis 2024 cogérante de l’agence Bulle, Poirier & Justman Architectes. Elle a par ailleurs enseigné à l’École Spéciale d’Architecture de 1982 à 2022.
|
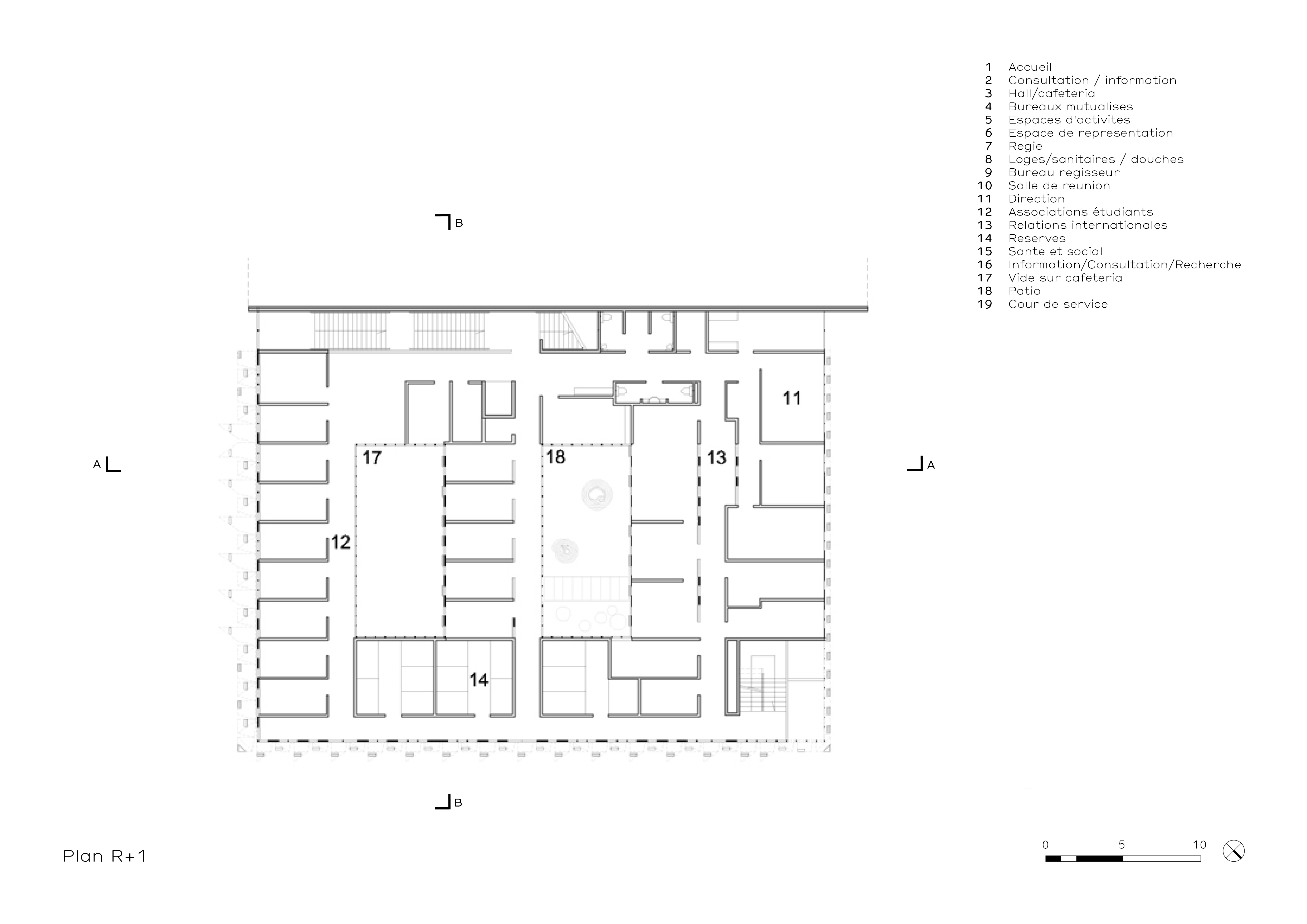
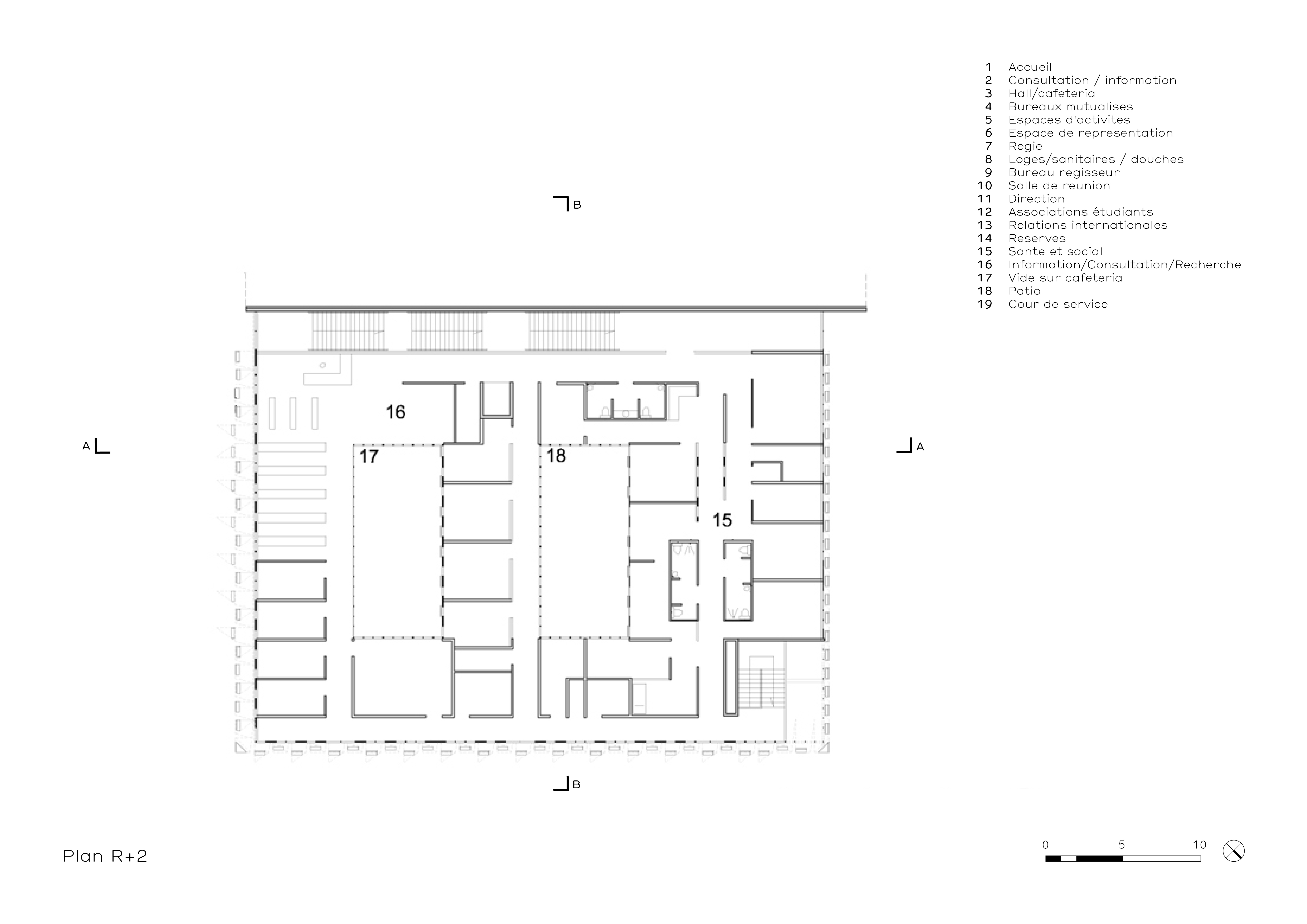
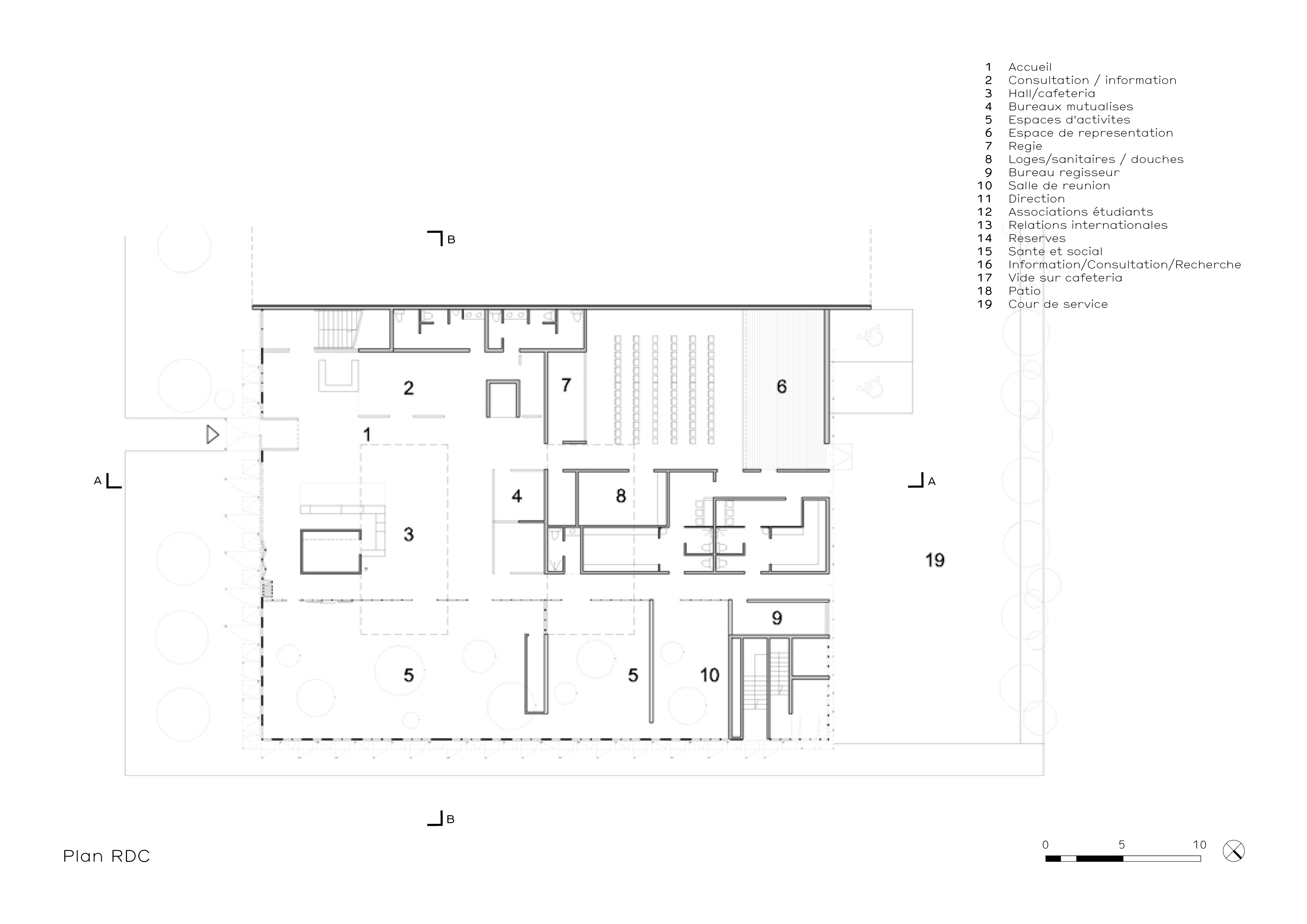
Maison des Etudiants de l'Université de Versailles St Quentin-en-Yvelines - Guyancourt (78)
Entre ville et parc, le quartier universitaire se tisse, la vie étudiante s’éveille… Entre architectures et structures paysagères – toutes réalisées en quelque dix années et toutes « signées » – un ultime îlot… qui, bien que dédié aux étudiants, se divise en deux opérations autonomes, avec au sud/ouest une « résidence » et au nord/est, ouvert sur le parc, une « maison ». Une maison qu’investissent bureaux associatifs et autres espaces de convivialité. Une maison qui, à la croisée des axes orthonormés du parc, ne pouvait échapper à la stricte morphologie du site, mais pouvait cependant prétendre – au regard de son programme – devenir le point de mire du « campus ». Radicale dans son implantation comme dans sa volumétrie, elle choisit de faire la différence. Elle devient repère. Revendique le statut de « folie » lovée dans son parc, de monolithe rouge-cuivré, de pavillon aussi hyper fonctionnel.
|