Momentum - résidence étudiante à Palaiseau
Maîtrise d’ouvrage : Maison des ingénieurs agronomes / ADIM
Architecte : bordas+peiro
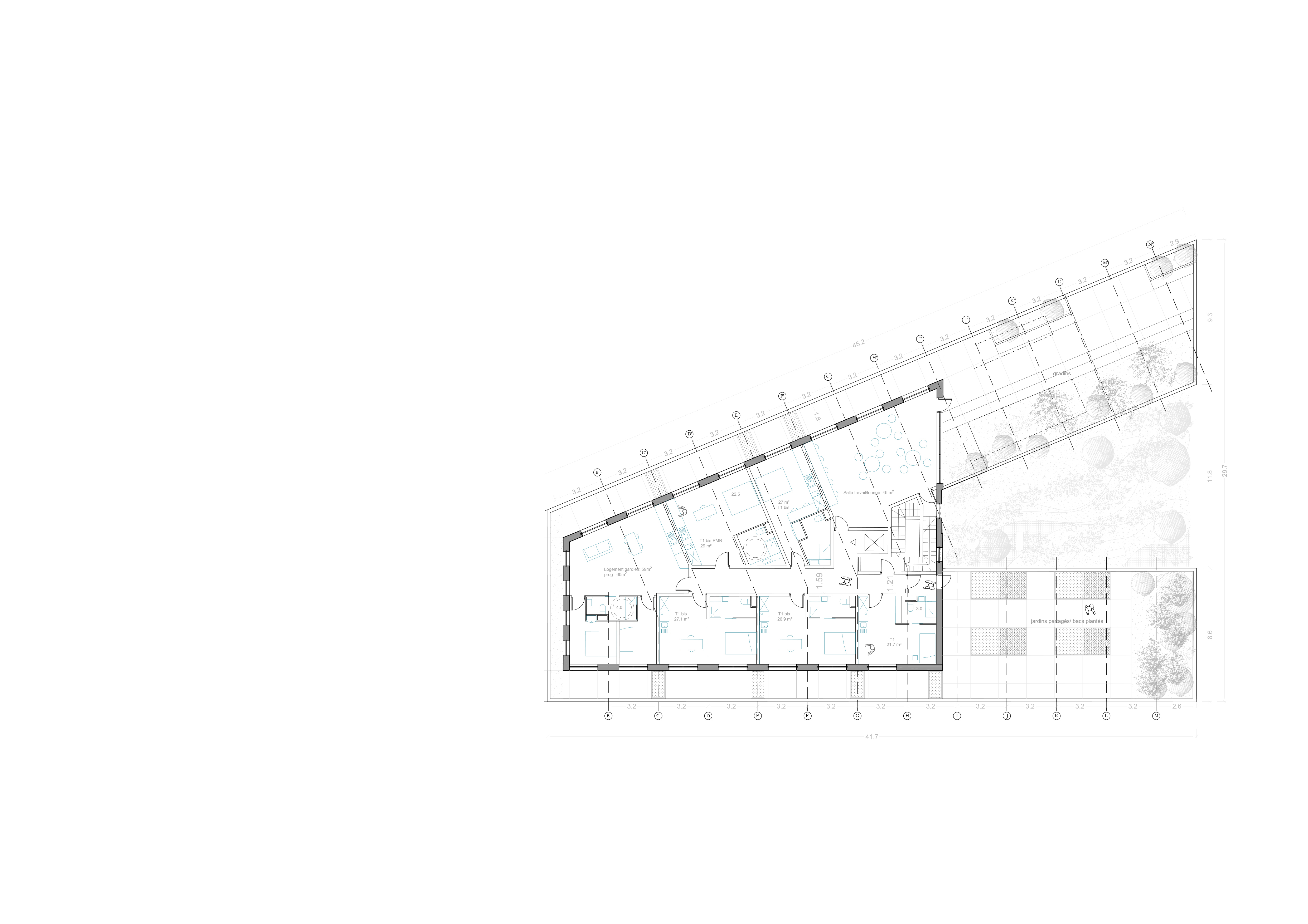
Surface : 7 950 m²
Calendrier : Concours en cours
Description du projet :
Le nouveau quartier Polytechnique sur le plateau de Saclay est en pleine évolution. Les premiers bâtiments émergent et donnent le ton de la ville que MDP et FAA XDGA ont conçu pour ce quartier. Le bâtiment de la future Maison des Ingénieurs Agronomes est une pièce maîtresse de ce nouveau quartier, elle constitue la porte d’entrée de la trame centrale par l’ouest, et fait partie de la « chaîne des lieux majeurs » qui sont une succession d’espaces publics remarquables liés les uns aux autres par des axes privilégiant les mobilités douces.
La proposition se base sur trois éléments forts :
- La construction d’une pièce urbaine qui s’affirme dans la trame à partir d’un positionnement juste, une volumétrie élancée, une trame régulière et un jeu savant dans l’articulation des programmes et volumétries du rez-de-chaussée, permettant les continuités urbaines.
- La constitution d’un bâtiment sobre, pérenne, qualitatif, résilient et adaptable. L’orientation a été réfléchie pour limiter les efforts énergétiques. Le bâtiment a été conçu pour rentrer dans les coûts de l’opération et se comporte comme signal et symbole dans le nouveau quartier.
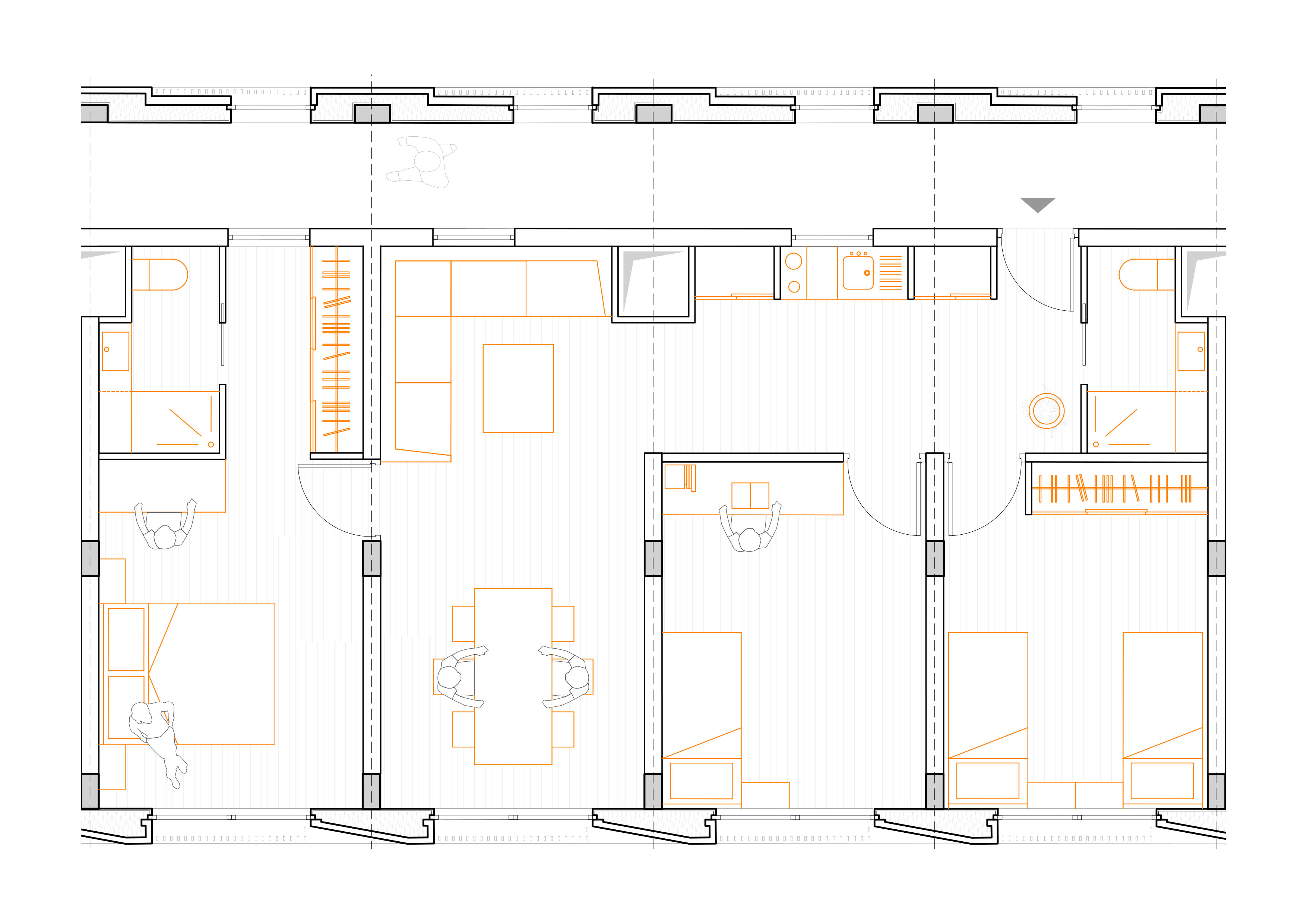
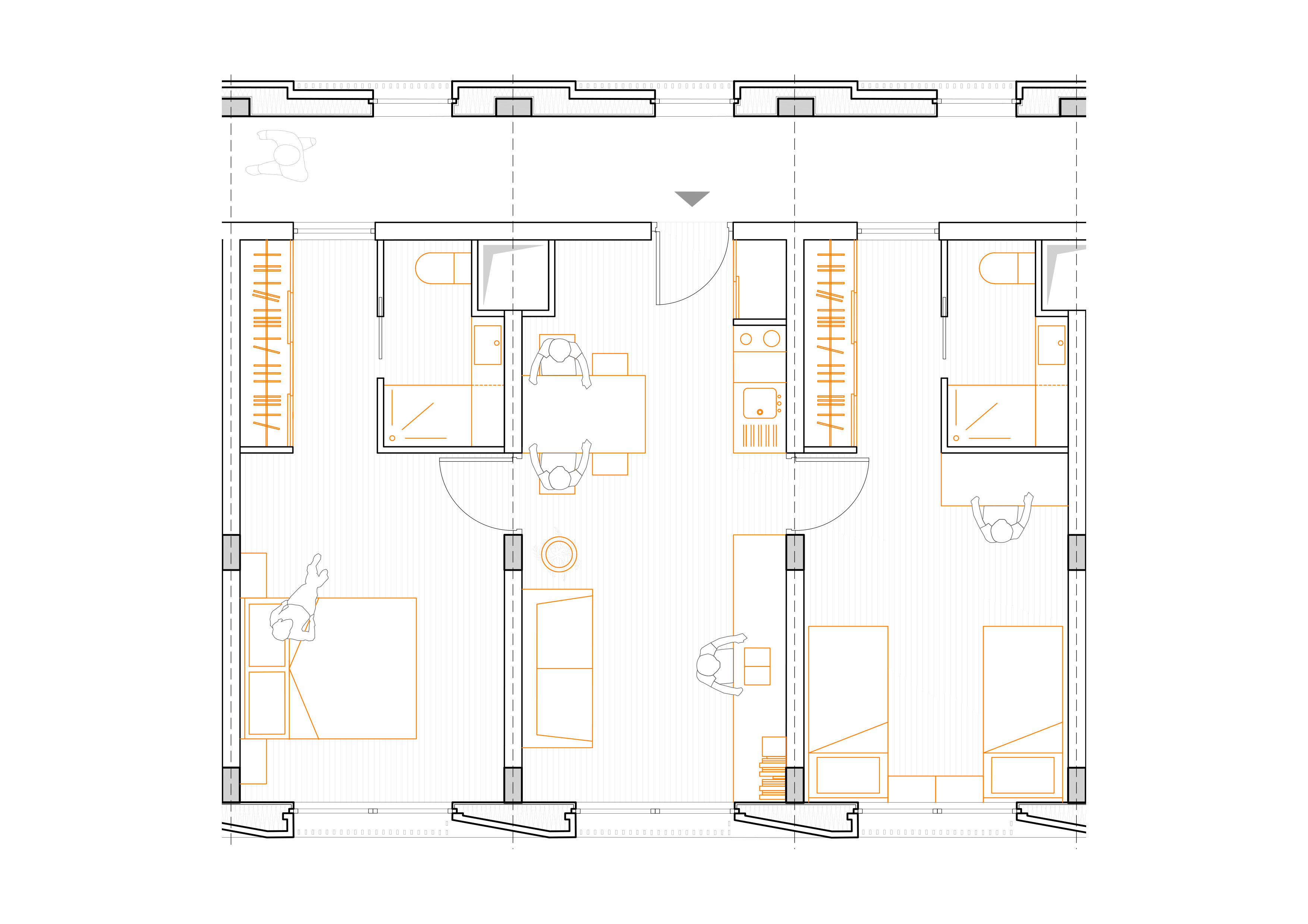
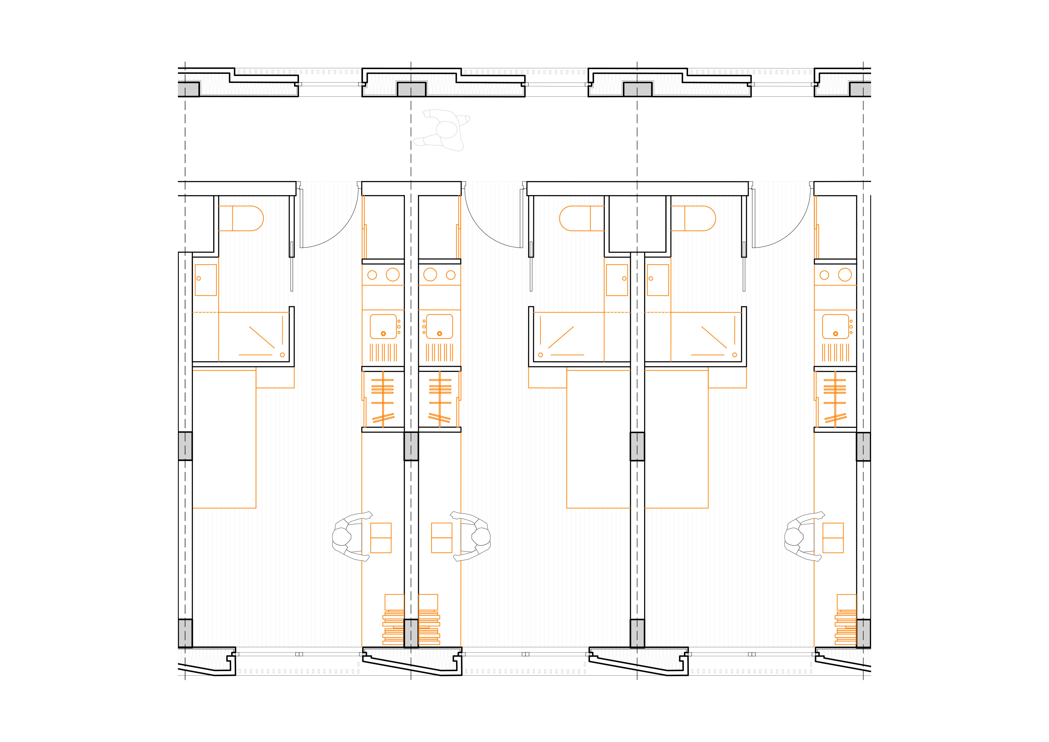
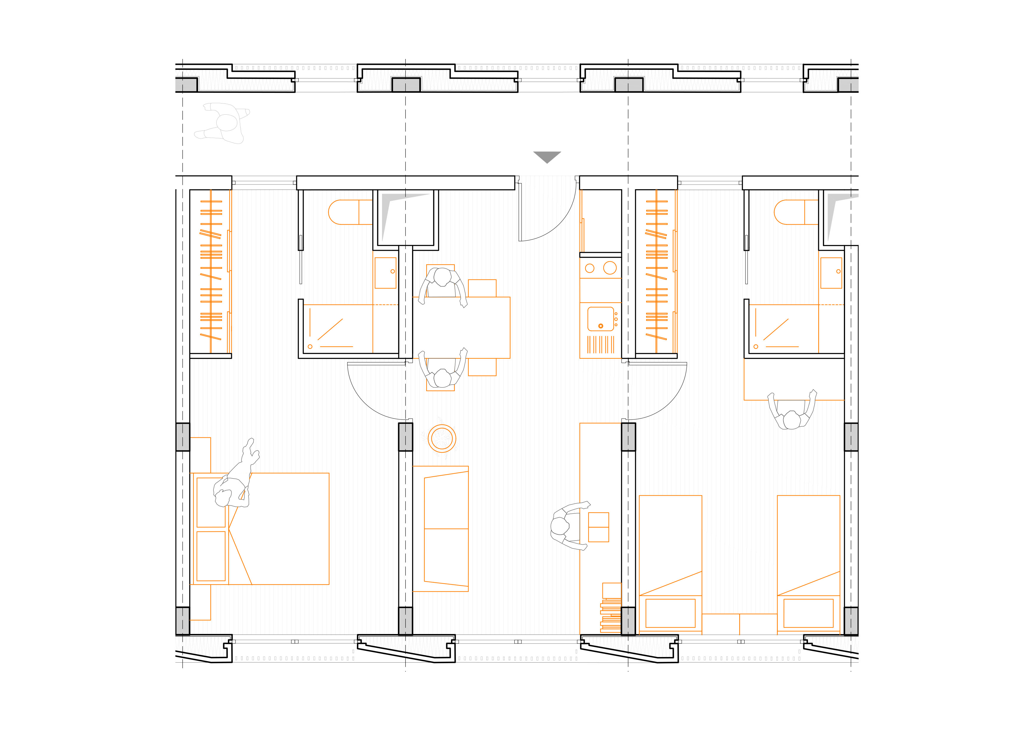
- Le travail sur la qualité des espaces qui rendent la vie étudiante plus facile, fluide et agréable. Nous avons cherché à favoriser la lumière naturelle, le confort et la dilatation spatiale des espaces privatifs en créant des espaces collectifs, de circulation favorisant la socialisation, les vues croisées et les mobilités douces.
Le projet tire sa force de sa rigueur. Cette rigueur émane en premier lieu de la forme de la parcelle et la tenue des rues et des angles, souhaitée par le projet urbain. Le projet s’en empare, en associant la rigueur à l’élancement par la constitution d’une trame régulière, calibrée et fertile par la toiture végétalisée notamment. Cette trame est un point porteur dans la création du projet, elle ordonnance, mais n’est pas perçue comme une contrainte car elle permet de résoudre les questions qui se posent dans la succession des échelles.
Il s’agit de créer un ordre spatial, constructif et pragmatique qui permet la libération de ressources pour améliorer la qualité des espaces et des matériaux en favorisant le recyclage. La dimension matérielle du projet reste dans une approche sobre mais sensorielle : des matériaux nobles, durables, apportant une réelle qualité aux espaces.
La composition architecturale résultante est sobre et emprunte de codes classiques qui lui permettront de traverser le temps avec aisance tout en jouant avec les enjeux contemporains environnementaux.

